
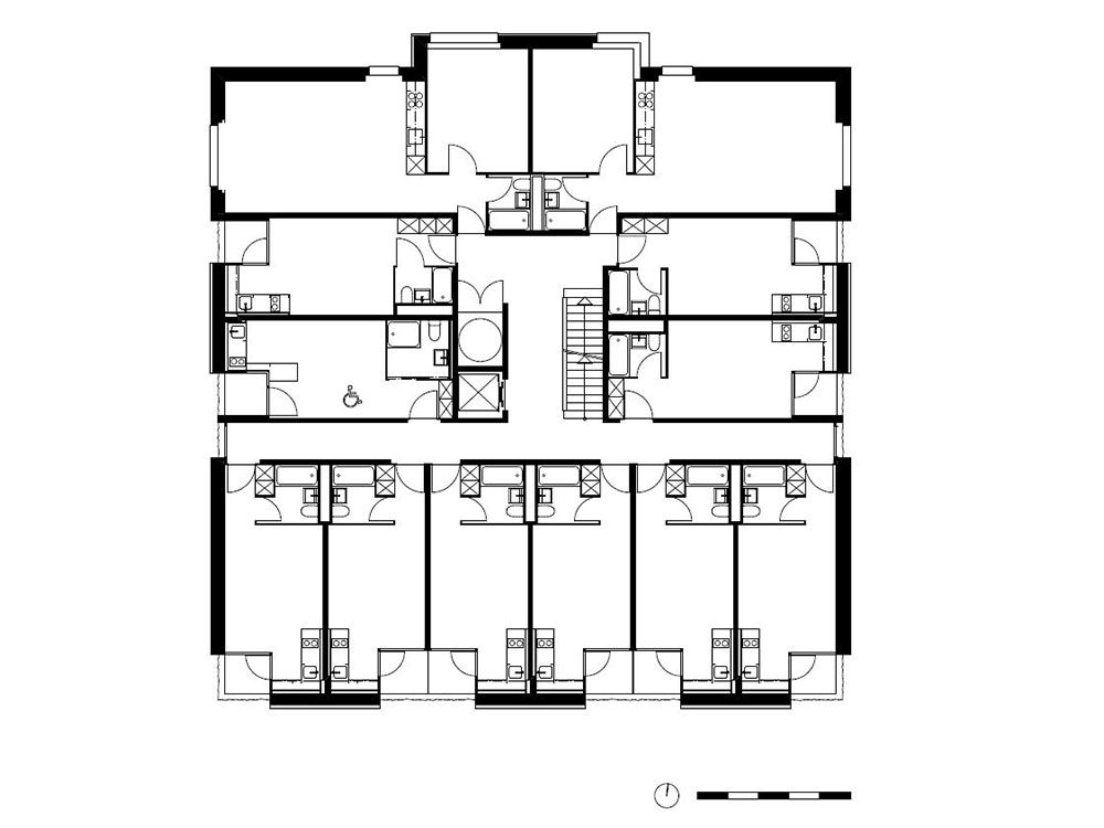
The apartment building, hosting 48 flats, was built in 1970 as a modest, practically non-insulated concrete structure. A change in the apartment sizes was therefore impossible for cost reasons. Consequently the structure has been maintained with small apartments, even though it was possible to add a top storey with larger apartments. The house now comprises 50 apartments with 1 to 3 rooms.
About 60 people live in the building with a total space requirement of 35 m² per person. The demand for hot water is correspondingly high. The large closed facade areas and the removal of an exhaust air duct of the underground car park led to a new energy concept: 180 m² of thermal solar collectors integrated in the facades and a 19 m high water storage tank in the former exhaust duct. A heat pump with four geothermal probes and 150 m² photovoltaic on the roof complete the energy system. The energy colander of the past is now fully equipped for the demands of our times. The vertical solar collectors stretch the building upwards and are covered with a glass that changes its appearance from bronze to silver (Kromatix). In addition, hop plants are a guard part of the facades, making a contribution to urban ecology.

Section of the building, in red is highighted the added top storey.

View of the building before the retrofit

Interior view of the top storey.
| Active solar surface | 230 m² | 181 m² |
| Active solar surface ratio | >75% | <25% |
| Peak power | 36 kWp | n/a |
| Building skin application | Flat roof | Cold facade |
| Storage | Water tank, storage battery | 19000 lt, 20kWh |

The existing windows have been all replaced.
DOMA FLEX large-area solar thermal collectors are located on three facades: 36m² each are located on the East and West Facades and 108m² on the southern facade. Because of the different locations of the solar collectors, energy is produced throughout the entire day. Although the vertical installation of the solar collectors reduces the yield in the summer, it optimizes the warmth production in the winter. The glass for the solar collectors are custom-made by Doma-Schweizer in Vorarlberg (Austria). They are coated with a Kromatix glass from Swissinso. The color of the collector changes from grey to bronze, depending on the angle of view and the intensity of the sun.























