
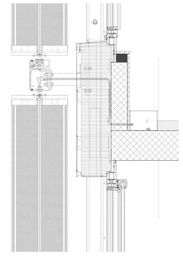
Das aus den frühen 80er Jahren stammende Gebäude wurde in Sachen Design und Technik auf den neuesten Stand gebracht. Das Hauptziel der Renovierung ist die Erneuerung der Haustechnik sowie die gestalterische und technische Modernisierung der Büros und der Gemeinschaftsbereiche: Empfang, Pausenräume und Cafeteria. Ein weiterer wichtiger Punkt ist die komplette Renovierung der Fassade, die dem Gebäude ein neues, markantes und unverkennbares Erscheinungsbild verleiht. Die Glaslamellen sind an den Südfassaden mit Photovoltaikzellen ausgestattet und werden über einen Motor gesteuert, der sie je nach Sonnenstand reguliert. Sie stellen ein innovatives Gestaltungselement dar und dienen gleichzeitig als Sonnenschutz und Energielieferant. Städtebaulich wirkt das Fassadenkonzept mit Glaslamellen beruhigend auf das Gebäude, das ohnehin schon durch seine Form relativ komplex ist. Diese vertikal angeordneten Lamellen drehen sich je nach Sonnenstand. Die Dünnschichtzellen sind halbtransparent, so dass eine ausreichende Verschattung gegeben ist, aber trotzdem eine gewisse Transparenz zwischen und durch die Lamellen erhalten bleibt.

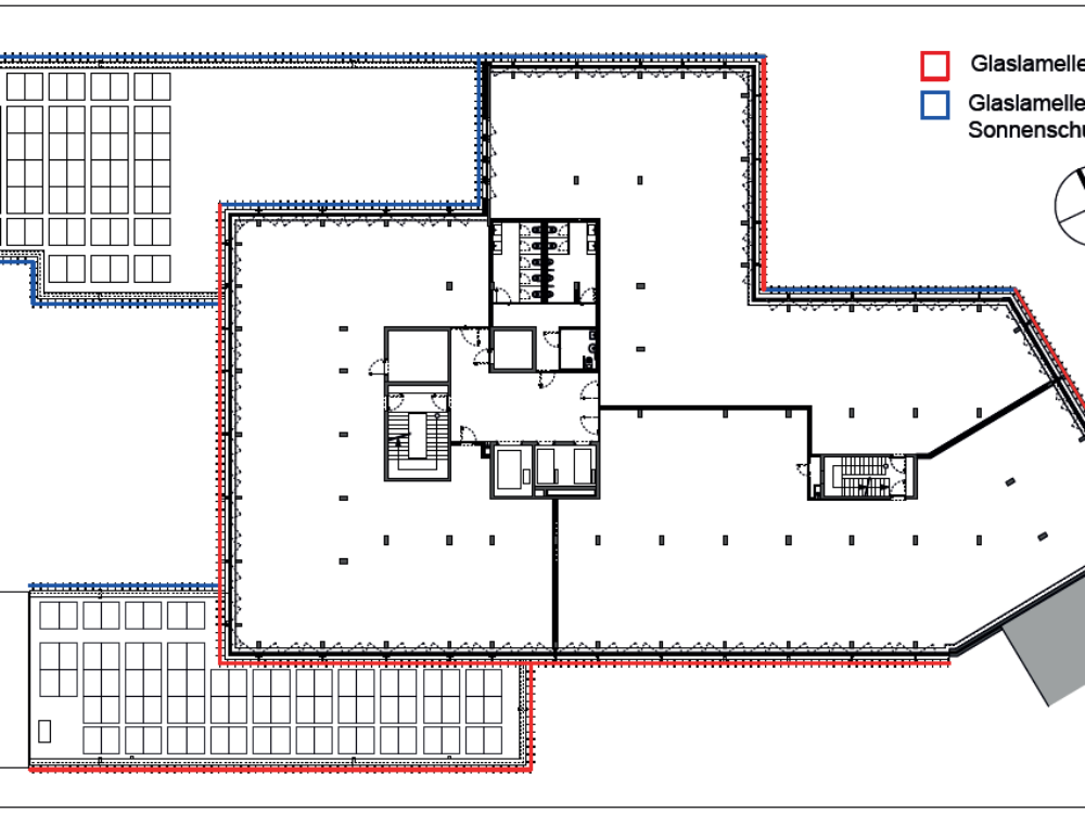
Grundriss des Obergeschosses.

Neuer Outdoor-Lounge-Bereich.

Das Gebäude der Mobiliar (Schweiz) in Bern vor der Sanierung.

| Energieertragsfläche | 455m² | 1384m² |
| Wirkungsgrad | <50% | <50% |
| Nominalleistung | 76 kWp | 74 kWp |
| Installationsort | Flachdach | Sonnenschutzvorrichtung |
| Speicherung | – | – |

Städtebaulich wirkt das Konzept der Lamellenfassade beruhigend auf das Gebäude, so dass es sich perfekt in das bestehende Stadtgefüge integriert.
Das Gebäude hat eine hochisolierende Gebäudehülle mit einer entsprechenden Dreifachverglasung, die weit mehr als eine übliche Minergie-Hülle ist. Die Lamellenfassade dient nicht nur als Sonnenschutz, denn diese gut besonnte Fassade erzeugt auch Strom. Die Glaslamellen sind geschosshoch, 45 cm breit und passen sich motorgesteuert dem Stand der Sonne an.











