
Das Wohnhaus Wattbuck in Effretikon ist ein typisches Beispiel für den architektonischen Ausdruck der 1960er und 1970er Jahre. Einige der damals errichteten Hochhäuser stehen nun vor einer zweiten Generalsanierung, so dass dies der ideale Zeitpunkt ist, um eine Solaranlage in die Fassade zu integrieren. Die Anlage liess sich leicht in die schlichte Fassadengestaltung integrieren, indem die Brüstungen unter den langen Fensterbändern genutzt wurden, die zuvor mit Faserzementplatten verkleidet waren. Neben einer gut gedämmten Gebäudehülle wurden rund 470m² Photovoltaikmodule an der Ost-, Süd- und Westfassade installiert. Die 84 kWp-Anlage liefert wertvolle Solarenergie, die zum größten Teil direkt vor Ort verbraucht wird.

Die schwarzen Photovoltaikmodule sind ideal für eine schlichte und diskrete Fassadengestaltung.

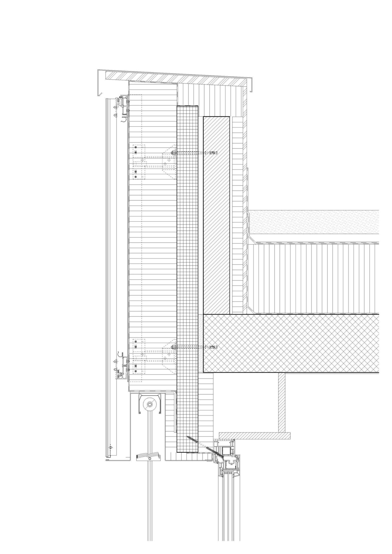
Photovoltaik-Module werden als Verkleidung der Brüstungen eingesetzt.

Die schwarzen Photovoltaikmodule sind ideal für eine schlichte und diskrete Fassadengestaltung.

| Energieertragsfläche | – | 470 m² |
| Wirkungsgrad | – | <50% |
| Nominalleistung | – | 84 kWp |
| Installationsort | – | Hinterlüftete Fassade |
| Speicherung | Nein | – |

Die Photovoltaikmodule werden in die Süd-, Ost- und Westfassade eingebaut.
Die PV-Module sind optimal in die Brüstungen unterhalb der Fensterbänder integriert, die zuvor mit Faserzementplatten verkleidet waren.
Der Jahresertrag von ca. 600 kWh/kWp zeigt, dass Gebäude ab einer bestimmten Höhe (in diesem Fall 13 Stockwerke) gut für die Energiegewinnung geeignet sind, da die Fassadenfläche weitgehend unverschattet bleibt.




