
Die beiden Wohngebäude bestehen aus 28 Wohnungen, die nach Süden aufgefächert sind. Die Fenster gewähren unterschiedliche Ausblicke und lassen passive Sonnenwärme in den Innenraum einstrahlen. Pro Etage sind vier Wohnungen unterschiedlicher Gestaltung angeordnet. Die Wohnungen sind über Eck orientiert und werden daher von mehreren Seiten belichtet. Einzelne, leicht schräg gestellte Wände erzeugen räumliche Spannung. Ab Kellerdecke sind die Bauten komplett in Holz erstellt, die Massivholzdecken sind sichtbar, während die Wände weiss verputzt sind.
Eine abgewinkelte, mit golden glitzernden polykristallinen Photovoltaikmodulen verkleidete Balkonbrüstung umfasst die beiden Gebäude dreiseitig. Sie macht die Bauten unverwechselbar und versorgt sie mit elektrischem Strom. Die Pelletheizung, unterstützt von Sonnenkollektoren, liefert die Heizwärme. Die zentrale Lüftungsanlage auf dem Dach wird über wohnungsinterne CO2-Fühler gesteuert.
Zwischen den Bauten erstreckt sich ein abwechslungsreicher Begegnungsraum. Staudensäume ergänzen die Spielflächen und bieten Lebensraum für viele Kleinlebewesen. In die Fassaden sind Nistkästen für Mauersegler und Fledermäuse eingelassen.

Erdgeschoss

Ausblick vom Balkon

Die polykristallinen Module mit Goldsprenkeln passen gut zur Holzverkleidung.

| Energieertragsfläche | 83 m² (STH) | k/A |
| Wirkungsgrad | <25% | >75% |
| Nennleistung | k/A | 56 kWp |
| Installationsort | Flachdach | Brüstung |
| Storage | n/a | n/a |

Die polykristallinen Module mit Goldsprenkeln sind in die Balkonbrüstung integriert.
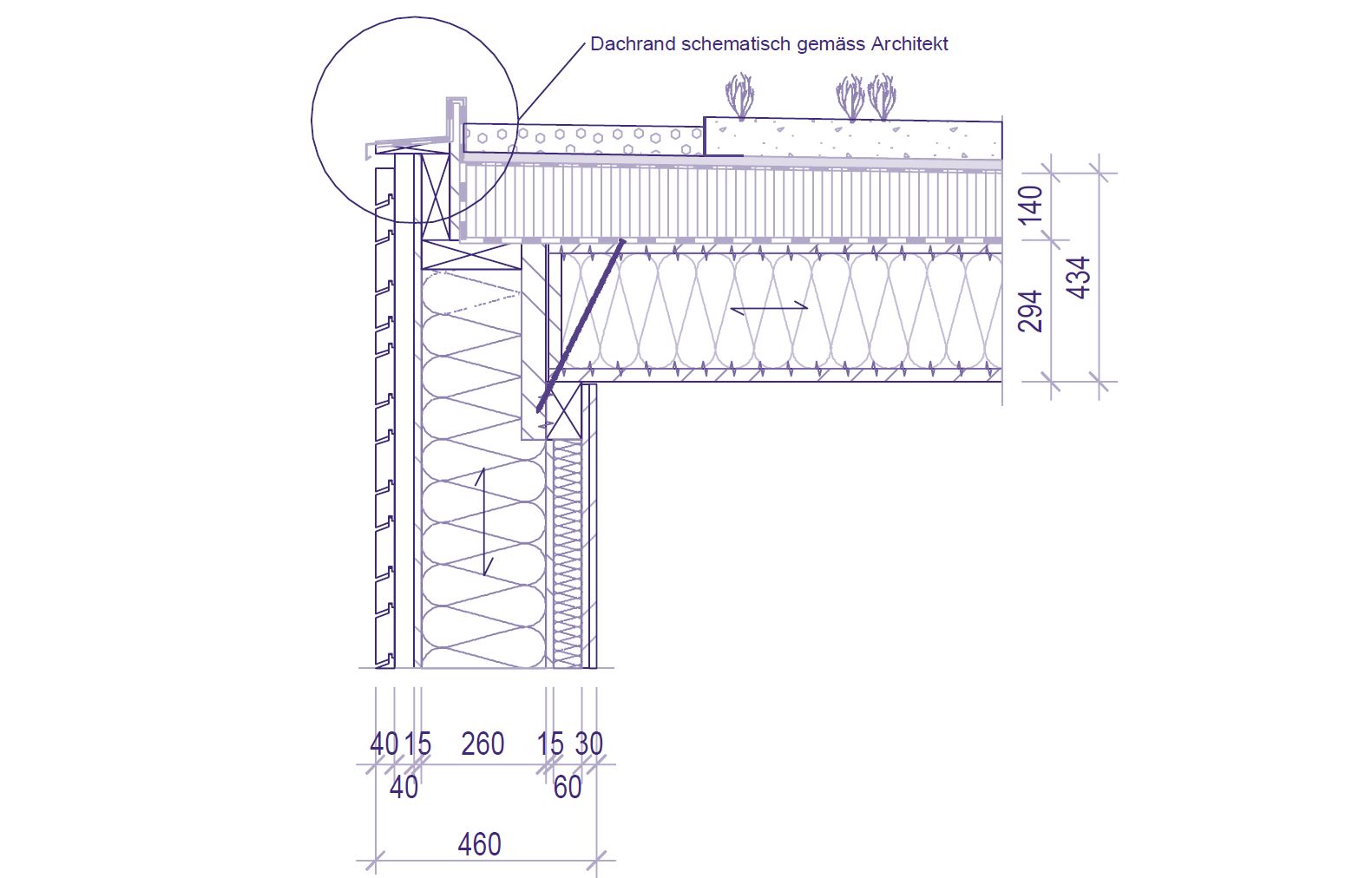
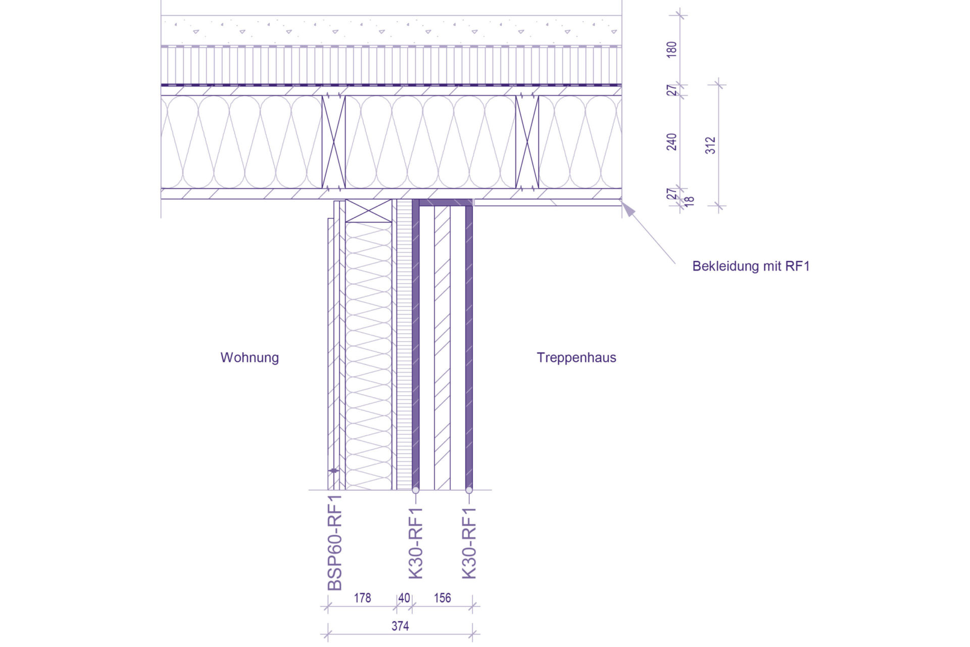
Die beiden Wohngebäude bestehen hauptsächlich aus vorgefertigten Holzelementen mit Mineralwolldämmung. Die beiden viergeschossigen Gebäude stehen auf Untergeschossen, die zu 50% mit Recycling-Beton erstellt wurden. Die Decken der Stockwerke sind aus Massivholz, die Treppen aus Brettsperrholz, das mit Gipsfaserplatten als Brandschutz ummantelt ist. Die Architekten haben nur sehr wenige rechtwinklige Winkel in ihrem Projekt eingesetzt, was zu einem komplexen strukturellen Konzept geführt hat.













