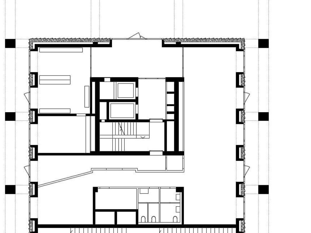
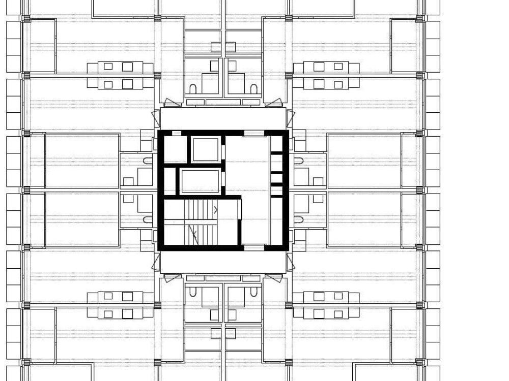
La Torre H1, con i suoi 75 metri di altezza, combina un nucleo e un basamento in calcestruzzo armato con una sovrastruttura leggera in legno. I ventuno piani residenziali sovrastanti si basano su un sistema ibrido: solette in calcestruzzo poggiano su una struttura prefabbricata in legno composta da pilastri, travi e pareti esterne.
Il massiccio basamento, sostenuto da pilastri in calcestruzzo, forma il “tavolo” su cui si innesta la struttura in legno, rendendo chiaramente leggibile e distintiva la logica portante dell’edificio. La facciata, ritmata da profili metallici rossastri, è animata da una variazione delle partizioni delle finestre che riflette l’organizzazione degli spazi interni.
Integrati nel rivestimento del parapetto, i moduli fotovoltaici generano elettricità e ombreggiano la facciata. Insieme al grande impianto fotovoltaico sul tetto, producono fino a 130’000 kWh all’anno, coprendo circa la metà del fabbisogno energetico degli appartamenti.
I piani residenziali ospitano da sei a otto appartamenti modulari per livello, organizzati attorno a un nucleo centrale. Le unità d’angolo beneficiano di doppio affaccio e di un abbondante apporto di luce naturale, mentre la costruzione modulare in legno consente una grande flessibilità sia nella configurazione orizzontale sia in quella verticale degli alloggi. Il risultato è un edificio alto sostenibile, adattabile ed espressivo dal punto di vista strutturale, che ridefinisce l’abitare urbano nel quartiere Zwhatt di Regensdorf.

Il quartiere Zwhatt di Regensdorf, sviluppato sull’ex sito industriale Gretag, rappresenta uno dei più grandi interventi di trasformazione urbana del Canton Zurigo. L’area è stata riconvertita in un quartiere urbano a uso misto e a impatto climatico neutro, che integra alloggi a prezzi accessibili, spazi commerciali e servizi. Nel lungo periodo, Zwhatt è destinato a riunire i tre quartieri esistenti di Regensdorf in un ben strutturato centro urbano di medie dimensioni. Fonte: Boltshauser Architekten AG.

All’esterno, l’edificio assume una tonalità rossa che dialoga con la torre adiacente dello Studio Märkli, mentre gli interni sono caratterizzati da colori naturali e discreti. © Kuster Frey.

Gli elementi fotovoltaici svolgono anche la funzione di dispositivi di ombreggiamento (brise-soleil), riducendo il surriscaldamento degli ambienti interni e consentendo al contempo l’ingresso della luce naturale e la vista verso l’esterno. Fonte: Ruch AG.
| Superficie solare attiva | 242 m² | 1’485 m² |
| Rapporto superficie solare attiva | abt. 35% | abt. 22% |
| Potenza nominale | 54 kWp | 188 kWp |
| Involucro edilizio | Tetto piano | Brise soleil |
70% per l'edificio stesso, 100% per l'areale ZEV (0% di immissione in rete)

Gli elementi della facciata in alluminio e acciaio coniugano una lavorazione di precisione con brise-soleil fotovoltaici che generano energia elettrica e allo stesso tempo ombreggiano gli interni. Fonte: Ruch AG.
La Torre H1 è concepita come una struttura ibrida legno–calcestruzzo, che combina efficienza dei materiali e ridotto impatto ambientale. Il nucleo scale e ascensori, il basamento e le solette sono realizzati in calcestruzzo armato, garantendo rigidezza strutturale, resistenza al fuoco e separazione acustica. I pilastri portanti e le travi ribassate, insieme agli elementi di facciata, sono invece costituiti da componenti prefabbricati in legno, che assicurano rapidità di montaggio in cantiere e un elevato grado di precisione esecutiva.
Rispetto a una struttura massiva convenzionale, il sistema ibrido consente una riduzione delle emissioni di CO₂ di circa il 20%, pari a circa 670 tonnellate lungo un ciclo di vita di 60 anni.
Le facciate sono progettate come un sistema prefabbricato ventilato con struttura in legno. L’esterno è rivestito con lamiere di acciaio zincato piegate fissate a una sottostruttura ventilata. Dietro la barriera antivento e il rivestimento in fibra di gesso, una struttura in legno riempita con isolante minerale fornisce la protezione termica principale. Un pannello interno in fibra di gesso completa la struttura, offrendo resistenza al fuoco e stabilità dimensionale.

Spesso denominata Redwood, la torre deve il suo nome alla calda tonalità rossastra della facciata metallica, che richiama il colore naturale del legno di sequoia. L’architetto si è ispirato alle maestose sequoie nordamericane, sia per l’espressione materica sia per il concetto strutturale dell’edificio. © Kuster Frey.
CREDITI
Foto: Kuster Frey. Tutti i diritti riservati ©. È vietata la copia o la riproduzione delle immagini in qualsiasi forma senza esplicita autorizzazione | Dettagli costruttivi: Boltshauser Architekten AG.















