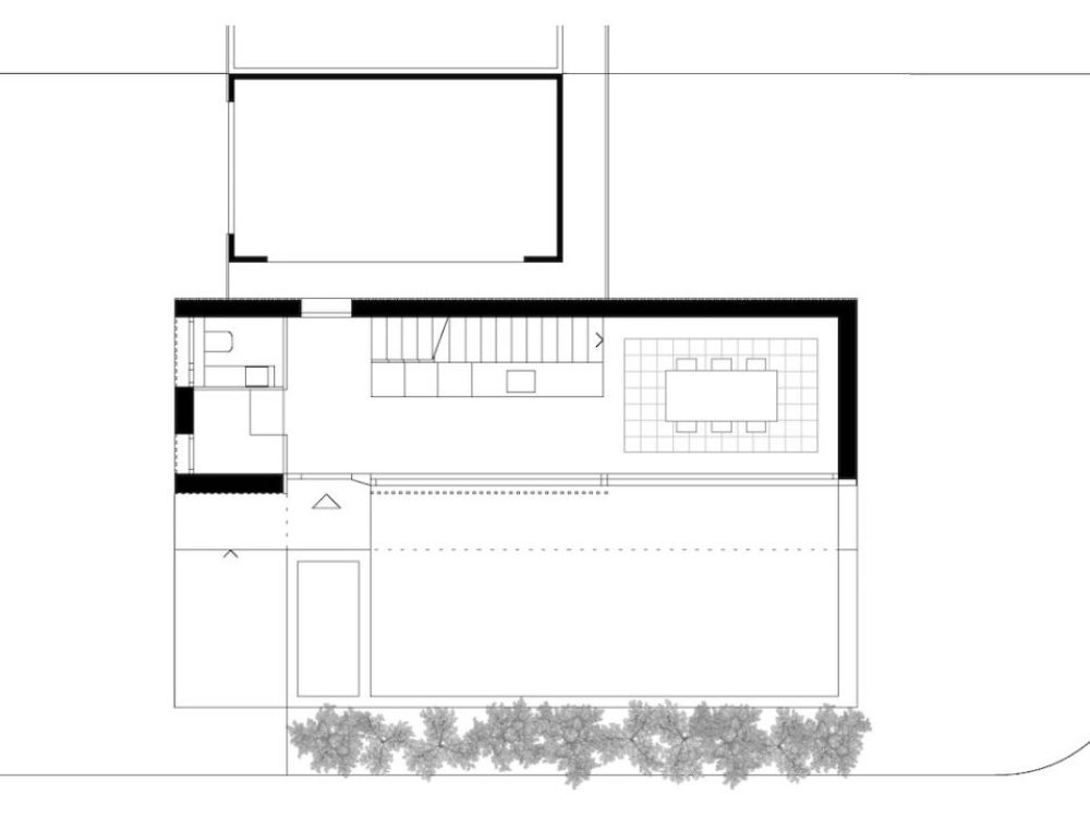
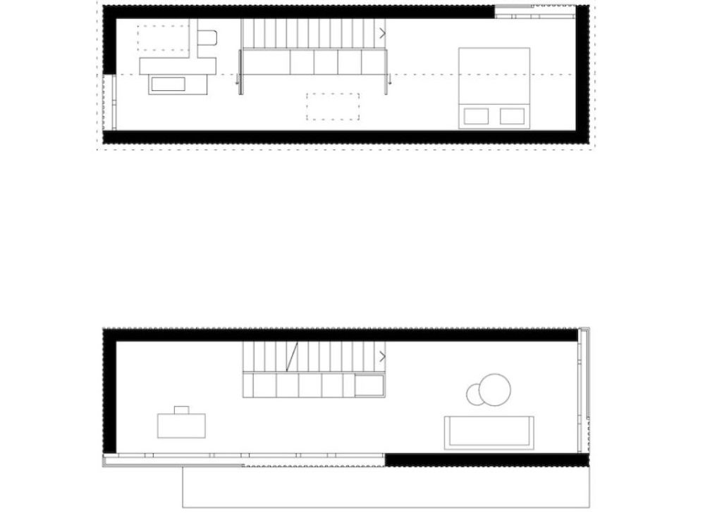
En bref – Maison pour MAdresseZollbruckweg 5a, 7302 Landquart, SuisseLocalisation46°96’174′ N │ 9°56’42.5″ EAltitude529 mètres au-dessus du niveau de la merPhotoManuel Martini (intérieur), schi.ke architektur (extérieur) InformationsType de bâtimentRésidentielType de constructionNouvelleAnnée de construction2021Puissance nominale9.15 kWpSurface solaire active56 m²Production énergétique9.900 kWh/a (source: schi.ke architektur)Type d’applicationTuiles solairesProduitMegaSlate II (2x 190W, 2x 150W, 44x 140W, 21 x 110W)Fabricant3S Swiss Solar Solutions AGArchitecteschi.ke architekturInstallateur photovoltaïqueEugster Elektro AG Façade ouest Photo: schi.ke architekturFaçade sudPhoto: schi.ke architekturVue intérieure - Salle de bainsPhoto: Manuel MartiniSalle de séjour - focus sur la cheminéePhoto: Manuel MartiniSalle de séjour - focus sur la cuisinePhoto: Manuel MartiniRez-de-chausséeSource: schi.ke architekturPremier et deuxième étageSource: schi.ke architektur 0 Comments 0 Like! Share