
deltaROSSO est un bâtiment de haute technologie conçu pour assurer la couverture complète de ses besoins énergétiques.
Le bâtiment abrite à la fois des appartements et des bureaux et consiste en une nouvelle structure de quatre étages qui repose sur deux étages du sous-sol du bâtiment existant qui jouent le rôle de fondation pour l’ensemble du bâtiment.
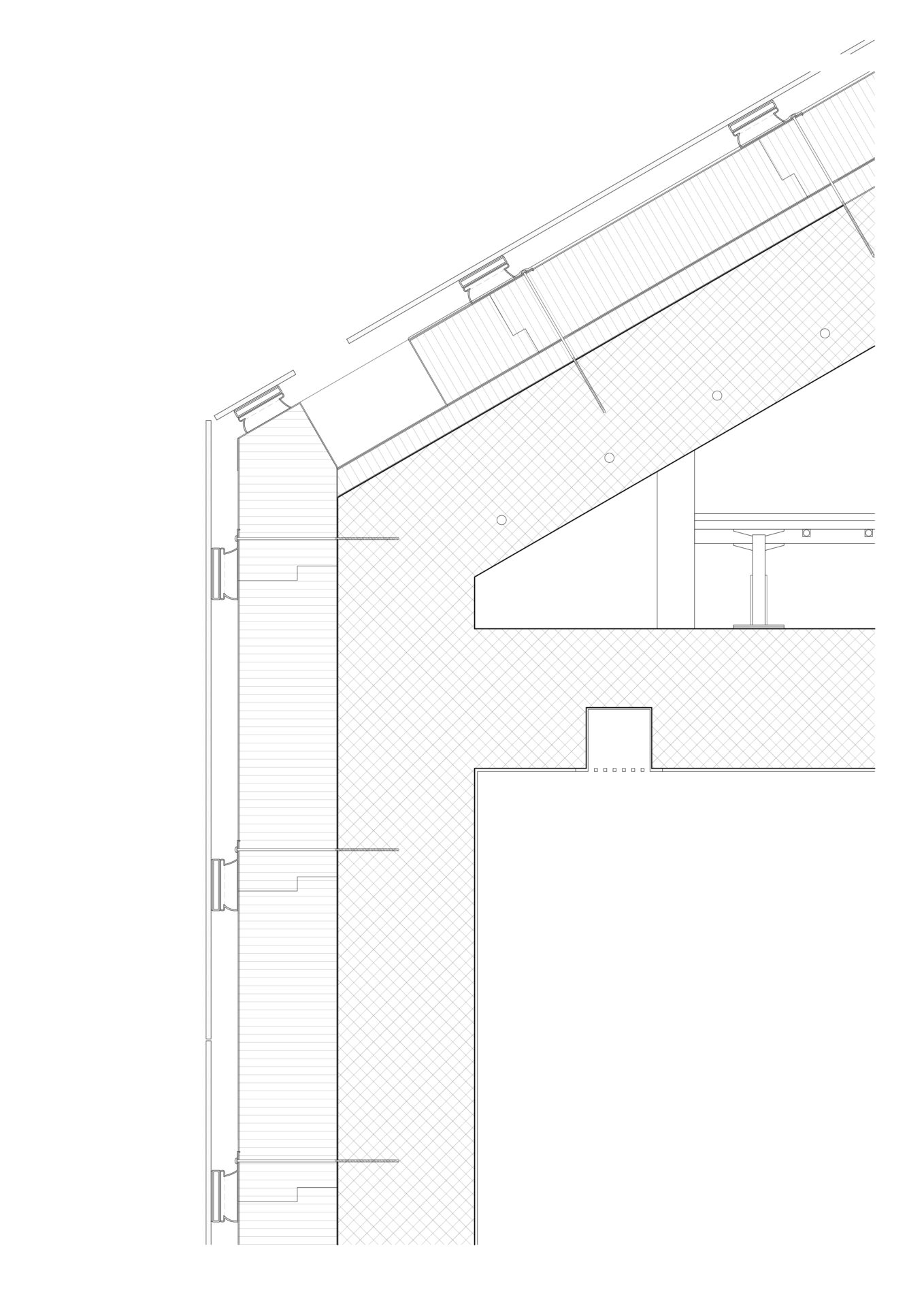
203 modules photovoltaïques et 13 capteurs solaires thermiques sont intégrés dans les façades et sur la pente sud du toit. Le système de revêtement, caractérisé par des vitres extérieures noir opaques, a été conçu et développé par l’architecte en gardent les mêmes caractéristiques esthétiques pour les murs périphériques et le toit.

Plan du deuxième et troisième étage

Façade sud-est

Vue intérieure
| Surface solaire active | 109m² | 194m² |
| Pourcentage de surface solaire active | <25% | >50% |
| Puissance nominale | 17 kWp | 30 kWp |
| Type de application | Tuiles solaires | Façade ventilée |
| Stockage | NO | – |

Façade sud-ouest
Une façade ventilée est une solution constructive qui présente de nombreux avantages thermiques, acoustiques, esthétiques et fonctionnels. Dans ce cas précis elle est composé de rails métalliques horizontaux sur lesquels sont collés des modules photovoltaïques verre/verre. Le revêtement de bâtiment « deltaROSSO » est le premier exemple d’application du système « helioSKIN » (brevet deltaZERO), un système de revêtement conçu pour les enveloppes de bâtiments qui intègre des technologies de production d’énergie.














