
Die Gebäudehülle hat dank den als Verkleidungspaneele und Dachziegel verwendeten Glaselementen ein homogenes Erscheinungsbild. Sowohl die Fassade als auch das Dach sind vollständig mit photovoltaischen Elementen bedeckt, deren Frontschicht aus braunem laserbedrucktem Glas besteht, das die monokristallinen Siliziumzellen verdeckt. Das Glas verringert die Stromproduktion der Photovoltaikzellen um etwa 39%. Die Module wurden speziell für dieses Projekt entwickelt.

Grundrisse des zweiten und dritten Stockwerks

Ansicht des Gebäudes

Innenansicht der Penthouse-Wohnung

| Energieertragsfläche | 200m² | 400m² |
| Wirkungsgrad | >75% | >75% |
| Nominalleistung | 25 kWp | 46 kWp |
| Bauart | Solarziegel | Hinterlüftete Fassade |
| Speicherung | Elektrische Batterie | 10kWh |

Installation von Photovoltaik-Modulen
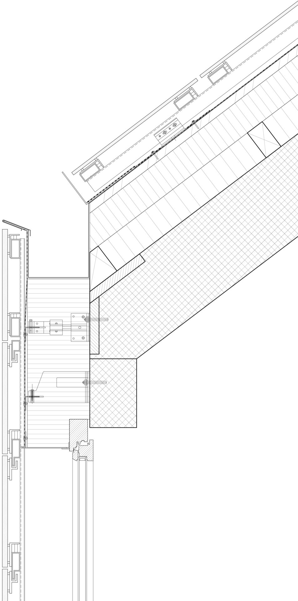
Die Struktur des Gebäudes, einschließlich des Schrägdachs, ist aus selbstverdichtendem Beton ausgeführt. Die Dämmschicht besteht aus 20 cm dicken Mineralwollpaneelen in Kombination mit einer wasserdichten Abdeckung. Die Solarhülle des Gebäudes wurde von der Hochschule für Technik und Architektur Luzern (HSLU) in Zusammenarbeit mit „Sundesign“ und „Ertex“ erstellt. Als Unterkonstruktion für die Photovoltaikmodule wurde das Montagesystem „GFT Fassadentechnik“ verwendet. Von außen ist das Montagesystem unsichtbar.
















